Projects

Proces dizajna interijera

Proces dizajna interijera – poslovni prostori

Svaki projekt započinje razumijevanjem poslovnog koncepta. U slučaju ovog sushi bara, inicijalni razgovori bili su usmjereni na analizu načina funkcioniranja prostora, radnih procesa zaposlenika, očekivanog protoka gostiju te atmosfere koju je investitor želio postići.


Paralelno s estetskim smjernicama, u fokus su stavljeni i tehnički, zakonski i sigurnosni zahtjevi koji prate projektiranje javnih komercijalnih prostora.


Već u početnoj fazi definirani su ključni ciljevi: stvoriti prostor koji je vizualno prepoznatljiv i ugodan za goste, ali istovremeno maksimalno funkcionalan, logičan i učinkovit za svakodnevni rad zaposlenika.

Poseban naglasak stavljen je na realne mogućnosti prostora, tehničku izvedivost i dugoročnu održivost rješenja.

Idejno rješenje – postavljanje koncepta

Prva faza projekta obuhvaćala je izradu idejnog rješenja koje postavlja jasan smjer daljnje razrade. Nakon detaljne analize lokacije, uzimanja mjera i sagledavanja svih funkcionalnih potreba, razvijene su varijante tlocrtnog rješenja s različitim rasporedima sjedenja, servisnih zona i komunikacijskih tokova.

Definiranje osnovnih smjernica prostora

Posebna pažnja posvećena je zoniranju prostora – jasnom razdvajanju dijelova namijenjenih gostima od radnih i servisnih zona, uz optimalnu povezanost kuhinje, šanka i prostora za posluživanje.


Svaka varijanta nudila je drugačiji odnos privatnosti, dinamike prostora i kapaciteta, uz poštivanje važećih zakonskih normi za ugostiteljske objekte.

Odabir konačne varijante tlocrta

Uz tlocrtna rješenja definirane su osnovne smjernice materijala, rasvjete, boja i obloga, kao i moodboard koji je vizualno komunicirao željeni karakter prostora - spoj suvremene elegancije, tihog luksuza i hedonističkog ugođaja.


Ova faza omogućila je investitoru jasan uvid u potencijal prostora i donošenje informiranih odluka prije ulaska u detaljnu razradu. Nakon zajedničke analize odabrano je rješenje koje je najbolje balansiralo funkcionalnost, kapacitet i atmosferu, te je ono poslužilo kao temelj za daljnji razvoj projekta.

Detaljni projekt – koordinacija estetike i sustava

U fazi detaljnog projekta odabrano rješenje dodatno je razrađeno kroz sve funkcionalne i prostorne segmente sushi bara. Poseban naglasak stavljen je na ergonomiju radnih zona, protočnost kretanja zaposlenika i logiku servisiranja, kako bi prostor omogućio učinkovit i nesmetan rad tijekom cijelog radnog dana.

Vizualni prikaz odnosa materijala i rasvjete

U ovoj fazi provedena je i intenzivna koordinacija s drugim stručnjacima, posebno u području HVAC sustava, ventilacije i klimatizacije, koji su ključni za ugostiteljske prostore.


Sustavi su integrirani u dizajn na način koji zadovoljava zakonske i tehničke zahtjeve, ali istovremeno ne narušava vizualni identitet prostora.Suradnja s projektantima strojarstva i drugim relevantnim strukama omogućila je cjelovito i tehnički ispravno rješenje.

Razrada prostora

Detaljni projekt uključivao je razradu materijala i završnih obrada za sve zone prostora, precizno planiranje rasvjete s naglaskom na atmosferu i funkcionalnost, kao i izradu 2D nacrta, presjeka i detalja.


Realistični 3D renderi korišteni su kao alat za provjeru prostornog odnosa, ambijenta i detalja, ali i kao jasna komunikacija s izvođačima i investitorima.

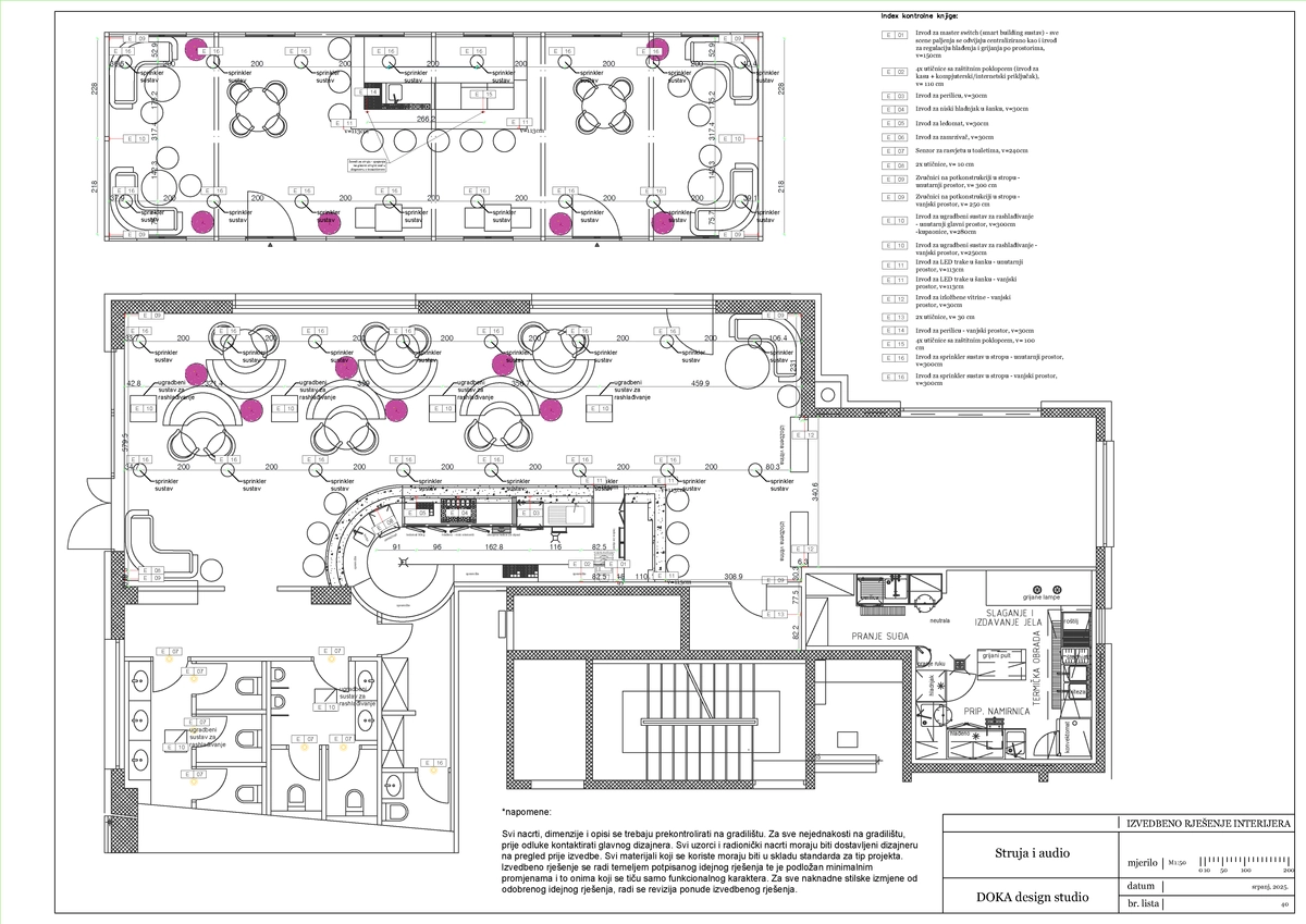
Izvedbeni projekt – temelj kvalitetne realizacije

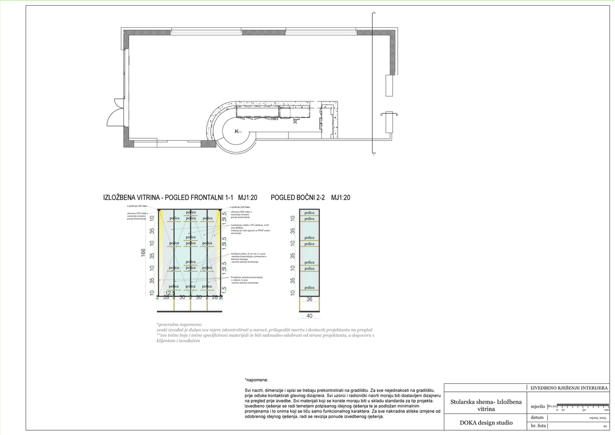
Završna faza projekta obuhvaćala je izradu izvedbene dokumentacije, ključne za sigurnu, preciznu i kvalitetnu realizaciju komercijalnog prostora. Izrađeni su detaljni tehnički nacrti svih elemenata interijera, planovi instalacija, rasvjete, HVAC sustava te specifikacije materijala i opreme, uz poseban naglasak na razradu stolarskih elemenata po mjeri.


Detaljno su projektirani glavni šank s točionikom u centralnom dijelu prostora, kao i šank na terasi, razrađeni do posljednjeg detalja s ciljem postizanja maksimalne funkcionalnosti za djelatnike, ali i stvaranja snažnog, vizualno dominantnog elementa koji definira prostor i prirodno privlači pogled gostiju.

Dokumentacija

Posebna važnost dana je usklađenosti projekta s važećim zakonima i pravilnicima koji reguliraju javne i ugostiteljske prostore, čime je osigurana sigurnost, funkcionalnost i dugoročna održivost objekta.


Jasna i precizna dokumentacija omogućila je izvođačima točno razumijevanje projekta, smanjila potrebu za improvizacijom na terenu te osigurala kontrolu kvalitete izvedbe.

Finalni proizvod

Tijekom realizacije provodila se koordinacija i nadzor izvođača, kako bi se osigurala dosljednost između projektiranog i izvedenog rješenja.


Upravo ovakav pristup omogućuje da komercijalni prostor, poput ovog sushi bara, ne bude samo vizualno atraktivan, već i tehnički ispravan, funkcionalan za zaposlenike i ugodan za goste – prostor koji uspješno podržava poslovanje i iskustvo boravka.

Često postavljana pitanja

Odgovori na najčešća pitanja prije započinjanja suradnje.

Koliko traje tipičan projekt?

Ovisi o veličini i složenosti projekta.

  • Idejno rješenje: 2-3 tjedna
  • Detaljni projekt: 4-8 tjedana
  • Izvedbeno rješenje: 10-12 tjedana

Nadzor tijekom gradnje obično traje koliko i sami radovi - od nekoliko tjedana do nekoliko mjeseci.

Koje su vaše cijene?

Cijena se formira prema vrsti i složenosti projekta, kvadraturi, rokovima i razini detalja koji su vam potrebni.

Također nudimo i personaliziran pristup kroz izradu individualnih ponuda nakon konzultacija jer svaki projekt tretiramo kao jedinstven.

Kontaktirajte nas da zajedno razmotrimo Vašu situaciju i mogućnosti.

Kako mogu koristiti vaše rendere nakon što je projekt gotov?

Renderi su dio projektantskih dokumenata i možete ih koristiti za:

  • Detaljnije dogovore s izvođačima
  • Vizualne prikaze potencijalnim kupcima (ako ste investitor)
  • Marketinške svrhe (u slučaju komercijalnih prostora)
  • Bolji vizualni pregled prije početka radova
Mogu li kombinirati usluge (npr. idejno + detaljno)?

Apsolutno. Većina klijenata krene s idejnim, a zatim nastavi s detaljnim ili izvedbenim rješenjem kada su sigurni u kojem smjeru žele ići.

To vam omogućava da donosite odluke korak po korak, bez obveze "sve odjednom".

Trebam li biti prisutan tijekom konzultacija?

Prvo mjerenje i analiza: Poželjno je da budete prisutni kako bismo razjasnili specifične potrebe i mogućnosti prostora.

Ukoliko izmjera na lokaciji nije moguća, potrebno je dostaviti točne tlocrte prostora s naznačenim mjerama, fotografijama prostora i kroz pisanu komunikaciju pružiti što više informacija o željama i viziji prostora.

Kasnije faze: Rad s fotografijama, mjerama i pisanom komunikacijom ako Vam to bolje odgovara.

Konzultacije je moguće raditi online, preko telefona ili pisanim putem.

JAVITE SE

Razgovarajmo o vašem projektu

Email

info@dokadesign.com

Broj telefona

+385 91 641 0040

Lokacija

Zagreb, Croatia

Follow