Projects

Proces dizajna interijera

Proces dizajna interijera – privatni prostor

Svaki projekt započinje razgovorom. U ovom slučaju, inicijalni kontakt bio je usmjeren na razumijevanje načina korištenja kuhinje, navika klijenata, njihovih estetskih preferencija i realnih prostornih ograničenja.


Budući da je glavni dio kuhinje raspolagao ograničenom kvadraturom, već u startu postavljen je jasan cilj – maksimalno iskoristiti prostor, bez kompromisa u funkcionalnosti i vizualnoj lakoći.


Idejno rješenje – postavljanje smjera

Prva faza projekta bila je izrada idejnog rješenja, koje služi kao temelj daljnje razrade. Kroz analizu prostora na lokaciji, uzimanje mjera i definiranje funkcionalnih potreba, razvijene su dvije do tri varijante tlocrtnog rješenja s različitim dispozicijama namještaja i opreme. Svaka varijanta nudila je drugačiji pristup organizaciji prostora i odnosu kuhinje s blagovaonicom.

Definiranje osnovnih smjernica prostora

Uz tlocrtna rješenja, definirane su osnovne smjernice zidnih i podnih obloga, prijedlozi boja, materijala, rasvjete i sanitarija, kao i moodboard koji je vizualno komunicirao željenu atmosferu i stil. Ova faza omogućila je klijentima jasan uvid u potencijal prostora te lakše donošenje odluka i postavljanje prioriteta.

Odabir konačne varijante tlocrta

Nakon zajedničke analize, odabrana je varijanta tlocrta koja je najbolje odgovarala funkcionalnim potrebama i željenom načinu korištenja prostora. Upravo to rješenje postalo je osnova za daljnju, detaljnu razradu.

Detaljni projekt – razrada prostora do posljednjeg detalja

U fazi detaljnog projekta odabrano rješenje dodatno je razrađeno po pojedinim zonama kuhinje. Kroz precizno planiranje elemenata po mjeri, posebno bočne linije ormara pune visine, značajno je povećan skladišni kapacitet prostora. U te elemente integrirani su ugradbeni aparati i izvlačne ladice, čime su funkcionalnost i urednost prostora podignuti na višu razinu.

Posebna pažnja posvećena je i povezivanju kuhinje s blagovaonicom. Kreiranjem manjeg šank prostora nasuprot blagovaonskog stola, dobivena je dodatna radna i komunikacijska zona, idealna za brzu pripremu pića i svakodnevno korištenje.

Vizualni prikaz odnosa materijala i rasvjete

Detaljni projekt uključivao je izradu moodboarda za sve zone kuhinje s konkretnim materijalima, bojama i završnim obradama, kao i 2D poglede i presjeke s jasno definiranim detaljima. Kroz realistične 3D rendere iz više kutova razrađen je svaki vizualni element prostora – od odnosa materijala i rasvjete do proporcija i ergonomije.

Razrada prostora

Renderi su korišteni kao alat za potvrdu projektnih rješenja, jasnu komunikaciju s izvođačima te kao podloga za dobivanje realnih i usporedivih ponuda za materijale, opremu i namještaj.

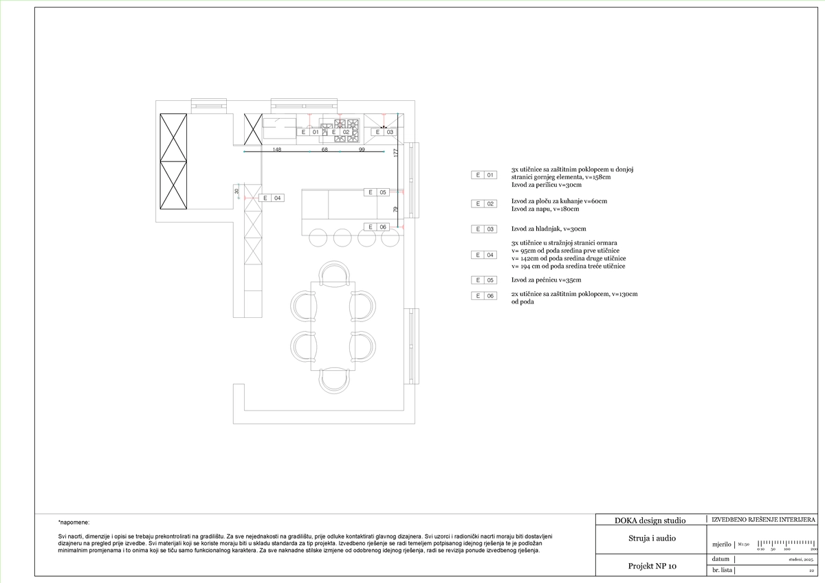
Izvedbeni projekt – tehnička preciznost za sigurnu realizaciju

Završna faza projekta bila je izrada izvedbene dokumentacije, koja predstavlja temelj za kvalitetnu i kontroliranu izvedbu. Izrađeni su detaljni tehnički nacrti svih predviđenih radova, planovi izgradnje novih elemenata, sheme polaganja zidnih i podnih obloga te precizni planovi rasvjete, utičnica, prekidača i scenarija paljenja.

Dokumentacija

Dokumentacija je uključivala i jasnu specifikaciju materijala i proizvođača, čime je izvođačima omogućeno točno razumijevanje projekta bez potrebe za improvizacijom na terenu. Upravo kvalitetni tehnički nacrti omogućili su bržu izvedbu, manji broj korekcija i preciznije ponude.

Finalni prostor

U sklopu projekta proveden je i nadzor te koordinacija s izvođačima, što je osiguralo glatku realizaciju i dosljednost između projektiranog i izvedenog rješenja, uz minimalne preinake tijekom radova.

Često postavljana pitanja

Odgovori na najčešća pitanja prije započinjanja suradnje.

Koliko traje tipičan projekt?

Ovisi o veličini i složenosti projekta.

  • Idejno rješenje: 2-3 tjedna
  • Detaljni projekt: 4-8 tjedana
  • Izvedbeno rješenje: 10-12 tjedana

Nadzor tijekom gradnje obično traje koliko i sami radovi - od nekoliko tjedana do nekoliko mjeseci.

Koje su vaše cijene?

Cijena se formira prema vrsti i složenosti projekta, kvadraturi, rokovima i razini detalja koji su vam potrebni.

Također nudimo i personaliziran pristup kroz izradu individualnih ponuda nakon konzultacija jer svaki projekt tretiramo kao jedinstven.

Kontaktirajte nas da zajedno razmotrimo Vašu situaciju i mogućnosti.

Kako mogu koristiti vaše rendere nakon što je projekt gotov?

Renderi su dio projektantskih dokumenata i možete ih koristiti za:

  • Detaljnije dogovore s izvođačima
  • Vizualne prikaze potencijalnim kupcima (ako ste investitor)
  • Marketinške svrhe (u slučaju komercijalnih prostora)
  • Bolji vizualni pregled prije početka radova
Mogu li kombinirati usluge (npr. idejno + detaljno)?

Apsolutno. Većina klijenata krene s idejnim, a zatim nastavi s detaljnim ili izvedbenim rješenjem kada su sigurni u kojem smjeru žele ići.

To vam omogućava da donosite odluke korak po korak, bez obveze "sve odjednom".

Trebam li biti prisutan tijekom konzultacija?

Prvo mjerenje i analiza: Poželjno je da budete prisutni kako bismo razjasnili specifične potrebe i mogućnosti prostora.

Ukoliko izmjera na lokaciji nije moguća, potrebno je dostaviti točne tlocrte prostora s naznačenim mjerama, fotografijama prostora i kroz pisanu komunikaciju pružiti što više informacija o željama i viziji prostora.

Kasnije faze: Rad s fotografijama, mjerama i pisanom komunikacijom ako Vam to bolje odgovara.

Konzultacije je moguće raditi online, preko telefona ili pisanim putem.

JAVITE SE

Razgovarajmo o vašem projektu

Email

info@dokadesign.com

Broj telefona

+385 91 641 0040

Lokacija

Zagreb, Croatia

Follow